変形カーポート施工例、図面のご紹介です。


3台用ガレージのうち、2台分だけ屋根。梁を延長することで、柱が邪魔にならない設計です。
アプローチ部分は片側柱タイプを間口加工して、接続。
玄関前は、他社のテラスを台形加工することで設置。
玄関から駐車場まで大雨でも濡れることなく快適な生活が送れるようになりました。
透明ポリカ屋根なので、明るく、吊り下げ屋根だと下からフレームも見えないので、すっきりとした仕上がりにすることができますね。
(愛知県春日井市で施工 三協Uスタイルなど)

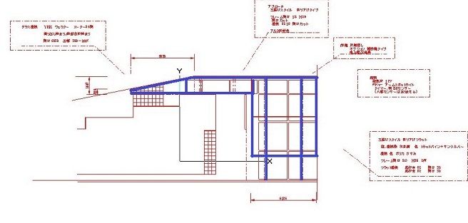
斜めの敷地でなおかつ玄関までの階段があるため、柱を1本なくさないといけません。
正面、左前の柱を1本なくすために、補強の梁をいれることでつくることができます。
南向きで暑さ対策もあるので、この場合は、透明な屋根ではなく、セッパンガレージだと夏の車内温度をずいぶん下げることができますね。
(愛知県内施工例 変形、柱移動セッパンガレージ)

明るくてカッコいい屋根にしたい!
でも、敷地が斜め。。
ということで、既成の吊り下げ屋根を斜めに加工、奥行も加工。
梁も斜めに渡すことで門柱ポストまわりの使い勝手もうまく確保できました。
吊り下げ屋根で下にフレームがないので、屋根の高さがしっかりとれます。
ミニバンをジャッキアップして整備したいというお客様のご要望に応えることができました。
(愛知県内施工 三協Uスタイル特殊加工施工例)

斜めの敷地は多いものですが、ここまでの角度の変形敷地はなかなかありません。
どこの会社でも断られたということで、設計を試行錯誤。
屋根の向き、柱の位置など数パターン考えて、どうにか形にすることができました。
玄関前、アプローチ部分には透明な屋根をいれたので、明るくなりました。
建物の窓の高さ、玄関庇との関係、強度を出すためのトラス梁とすっきり高さを確保するシングル梁との適材適所でいろいろと解決しています。
(愛知県内で施工 変形セッパンガレージ)


