ブログ一覧
ブログ
一覧
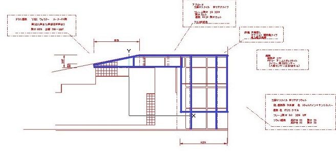
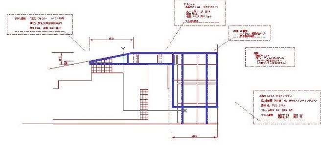
変形オーダーメイドガレージ、施工完了しました。 < 愛知県>
変形オーダーメイドガレージ、施工完了しました。 < 愛知県>
カーポートのメーカー保証
<激安店、基礎の施工基準は大丈夫?>カーポートのメーカー保証
<激安店、基礎の施工基準は大丈夫?>
カーポートのメーカー保証
<激安店、基礎の施工基準は大丈夫?>
結局、どこに頼めばいいの?
結局、どこに頼めばいいの?
畑土を名古屋市 長楽寺にお届け
畑土を名古屋市 長楽寺にお届け
家庭菜園の畑土をお届け
