カーポート・ガレージ工事の

建築確認申請はお済みですか?

2025年の法改正に対応

申請代行も行っています

建築確認申請

カーポート・ガレージ工事の確認申請について

2025年4月より、申請の重要性がさらに高まっています。

確認申請が必要になってきています

ここ最近、カーポート、ガレージを施工する前に建築確認申請をする事案が多くなってきています。

今までも、10m2以上の屋根を施工するときは、本当は建築確認申請をしないといけませんでした。

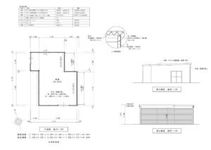
ガレージ工事の図面

ただ、端部分の緩和措置もありましたし、業界の暗黙の……というか、申請なしでとくに役所の指導もないので、申請なしで施工するというグレーな部分が世間の98%くらいだったのではと思います。


2025年4月の建築基準法改正

ただ、2025年4月の建築基準法の改正があり、それ以降、申請しておきましょうという事例が多くなりました。

住宅関係の法改正が多いのですが、その中に、「大規模なリフォームをするときも建築確認申請をする」という法律もできましたので、今後、リフォームをする可能性がある場合は、カーポート、ガレージもしっかり申請を出しておかないと、リフォームのときの申請が通りません。

もちろん、建蔽率オーバーなどある場合は、全然だめです。
ガレージ工事図面
ガレージ工事図面


申請なしで施工した場合のリスク

その法改正にともなって、従来のグレーだからでは通らないことも多くなってきたようで、実際にセッパンガレージのメーカーに聞いたところ、ここ最近で申請を出していなくて施工していた現場に役所から指導がはいり、

  • 1件は、屋根をはずしてあらたに申請を出す準備をしている
  • 1件は、工事が中断してしまった

とのことでした。

地域によっては、見回りも厳しいですし、世の中詳しい人による通報もあるようです。もちろん、工事中は看板を出して作業をしなくてはいけませんので、見ればすぐに申請を出していないことがわかりますね。

建設業許可のない会社には注意ネットの激安店や下請けに丸投げ会社、ホームセンターなど、建設業許可をとっていない会社は申請が出せませんので注意が必要です。

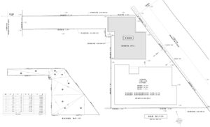
ガレージ施工例
ガレージ施工例
ガレージ施工例


確認申請のご相談を承ります

建築確認申請をしっかり出して施工してほしいというご依頼も増えておりますので、そのような方がおりましたら、しっかり対応させていただきたいと思います。

工事中止や罰金といったことのないように、いろいろとアドバイスできると思いますので、ご相談ください。
建築確認申請書
建築確認書面


建設業登録されていない業者様へのサポート

一般個人のお客様に基本的に対応しておりますが、カーポート、ガレージ施工の職人様、個人事業者様などで建設業登録されていない方への建築確認申請サポートも行っております。

申請代行サービス内容

  • 建築確認申請のアドバイス・サポート
  • 申請用の図面の作成
  • 申請業務代行
  • 謄本・公図の取得

建築確認申請用の図面


お早めのご相談をおすすめします

申請には日数もかかることが多いので、早めのご相談をおすすめいたします

よろしくお願いいたします。

外構職人ナカシマに
ご相談ください

施工地域のご案内

● 愛知県春日井市を起点に名古屋市、瀬戸市、小牧市、犬山市、北名古屋市、尾張旭市、長久手市、日進市、豊明市、三好市、豊田市、岡崎市、安城市、刈谷市、知立市、大府市、東海市、江南市、一宮市、あま市、清須市、岩倉市など
● 岐阜県は多治見市、土岐市、瑞浪市、恵那市、各務ヶ原市、美濃加茂市、岐阜市、岐南町など

● 高速道路の便利の良い地域は比較的遠方でも可能となっております。

LINE友達追加お問い合わせ